| 2. nadzemní podlaží | |
|---|---|
| Neprodáno | 0 |
| Rezervováno | 0 |
| Prodáno | 12 |
| Připravujeme | 0 |
| 3. nadzemní podlaží | |
|---|---|
| Neprodáno | 0 |
| Rezervováno | 0 |
| Prodáno | 12 |
| Připravujeme | 0 |
| 4. nadzemní podlaží | |
|---|---|
| Neprodáno | 0 |
| Rezervováno | 0 |
| Prodáno | 10 |
| Připravujeme | 0 |
Bytový dům 1
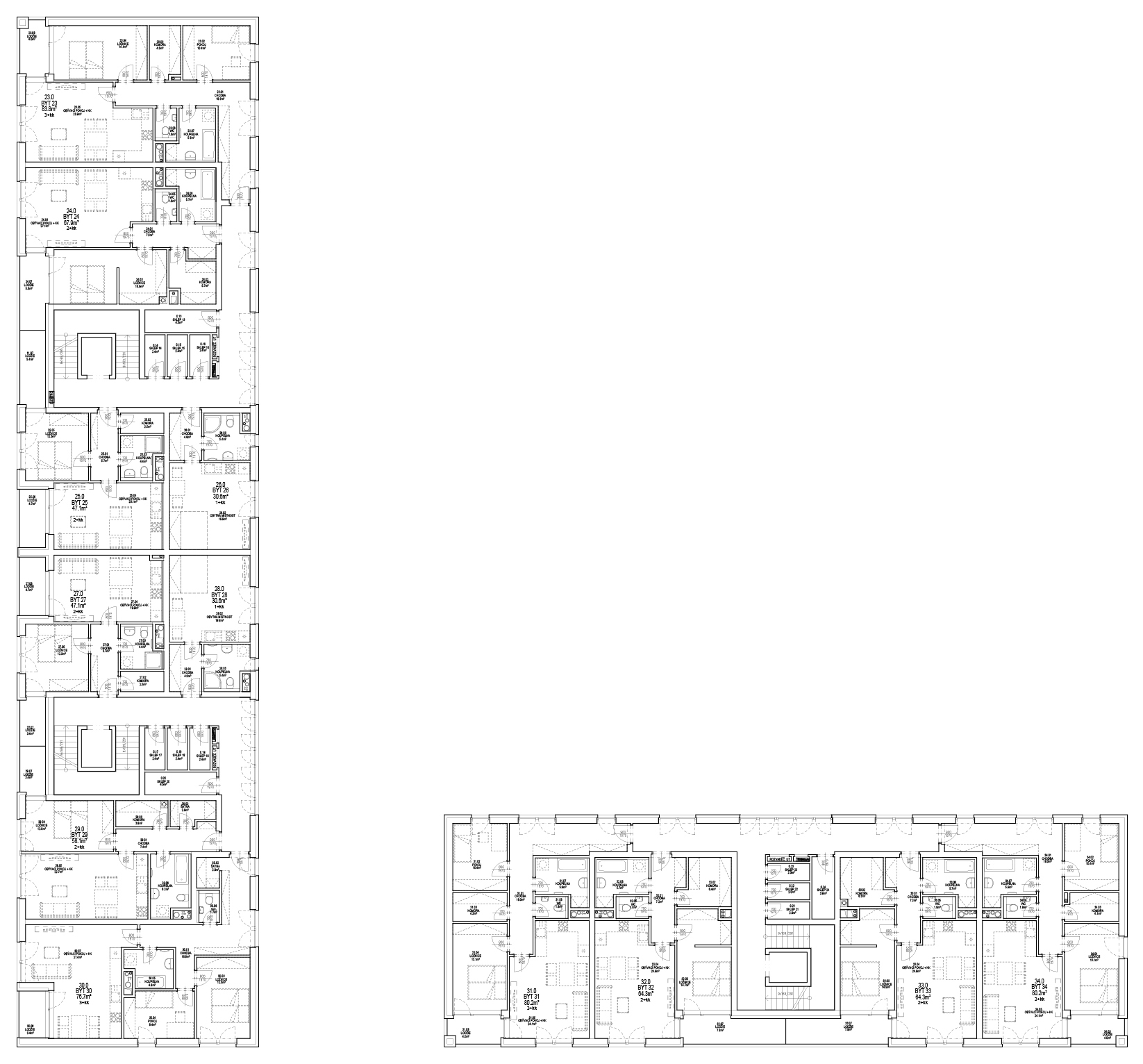
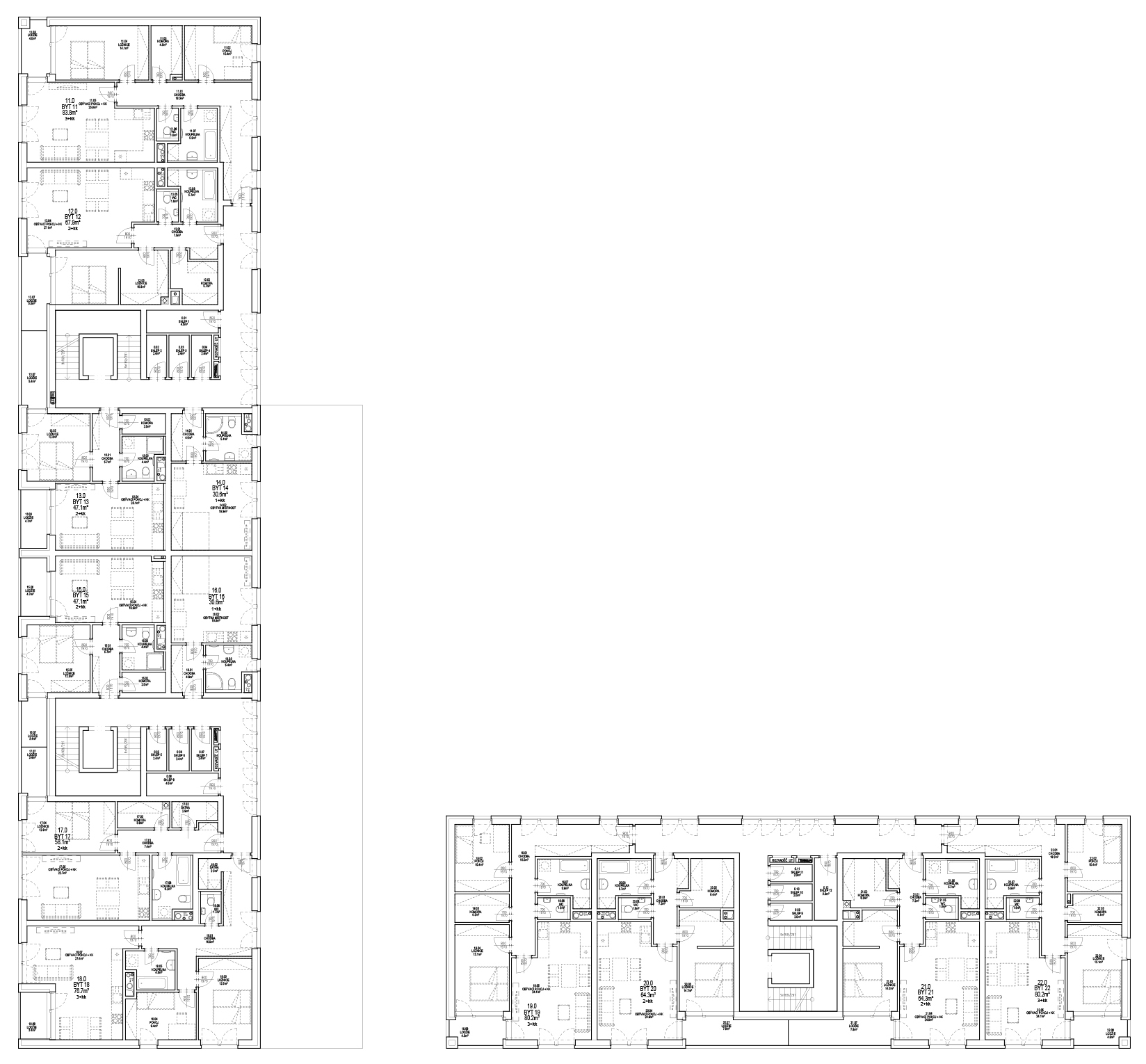
Pětipodlažní podsklepený objekt
V 1. PP je navrženo 46 garážových stání. Současně jsou zde prostory pro umístění el. rozvaděčů a slaboproudých rozvodů. Spojení s vyššími podlažími je zajištěno třemi schodišti a výtahy.
V 1. NP je navrženo 10 nebytových jednotek podlahové plochy 47,7 m² – 119,3 m². Současně jsou zde umístěny 3 kotelny a místnosti pro úklid. Ve 2. NP - 4. NP se nachází celkem 34 bytových jednotek s dispozičním uspořádáním 1+kk, 2+kk, 3+kk s podlahovou plochou 30,6 m² - 83,8 m². Součástí bytů ve 2. NP – 3. NP jsou lodžie, ve 4. NP terasy. V jednotlivých nadzemních podlažích je vždy umístěn patřičný počet sklepů k jednotlivým bytovým jednotkám.
Zahájení výstavby: 03/2020
Dokončení výstavby: 09/2021
Kupní cena bytové jednotky zahrnuje
- cenu bytové jednotky při zachování standardního vybavení, jehož součástí není pouze dodávka kuchyňské linky, vestavěného nábytku a svítidel v obytných místnostech.
- cenu příslušenství (sklep, lodžie, popř. terasa)
- cenu spoluvlastnického podílu na pozemku zastavěném bytovým domem a pozemku náležejícímu k bytovému domu, na společných částech domu a veškerých inženýrských sítích a rozvodech, resp. přípojkách, které budou v podílovém spoluvlastnictví vlastníků jednotek
Cena bytové jednotky je stanovena včetně platné DPH.
K ceně bytové jednotky bude dále připočítána cena garážového stání v případě,
že bytová jednotka má garážové stání přiděleno (viz půdorys bytové jednotky).
Kromě vnitřních garážových stání budou na venkovní komunikaci přiléhající
k bytovému domu veřejná parkovací stání, která budou v majetku města Plzně.
Podzemní podlaží

1. nadzemní podlaží
2. nadzemní podlaží
| Byt číslo 11 | |
|---|---|
| Prodáno | |
| Byt číslo 12 | |
|---|---|
| Prodáno | |
| Byt číslo 13 | |
|---|---|
| Prodáno | |
| Byt číslo 14 | |
|---|---|
| Prodáno | |
| Byt číslo 15 | |
|---|---|
| Prodáno | |
| Byt číslo 16 | |
|---|---|
| Prodáno | |
| Byt číslo 17 | |
|---|---|
| Prodáno | |
| Byt číslo 18 | |
|---|---|
| Prodáno | |
| Byt číslo 19 | |
|---|---|
| Prodáno | |
| Byt číslo 20 | |
|---|---|
| Prodáno | |
| Byt číslo 21 | |
|---|---|
| Prodáno | |
| Byt číslo 22 | |
|---|---|
| Prodáno | |
| Číslo | Typ | Podlahová plocha | Balkón / Lodžie / Terasa | Sklep | Cena bytu s DPH | Cena garážového stání s DPH | Stav | PDF ke stažení |
|---|---|---|---|---|---|---|---|---|
| BD1_Byt11 | 3+KK | 83,8 m² | L 4 m | 4,5 m² | Prodáno | |||
| BD1_Byt12 | 2+KK | 67,9 m² | L 5,5 m² | 2,4 m² | Prodáno | |||
| BD1_Byt13 | 2+KK | 47,1 m² | L 10,1 m² | 2,4 m² | Prodáno | |||
| BD1_Byt14 | 1+KK | 30,6 m² | 2,4 m² | Prodáno | ||||
| BD1_Byt15 | 2+KK | 47,1 m² | L 8,1 m² | 2,4 m² | Prodáno | |||
| BD1_Byt16 | 1+KK | 30,6 m² | 2,4 m² | Prodáno | ||||
| BD1_Byt17 | 2+KK | 58,1 m² | L 3,4 m² | 2,4 m² | Prodáno | |||
| BD1_Byt18 | 3+KK | 76,7 m² | L 3,4 m² | 4,5 m² | Prodáno | |||
| BD1_Byt19 | 3+KK | 80,2 m² | L 4 m² | 2,0 m² | Prodáno | |||
| BD1_Byt20 | 2+KK | 64,3 m² | L 7,8 m² | 2,0 m² | Prodáno | |||
| BD1_Byt21 | 2+KK | 64,3 m² | L 7,8 m² | 2,0 m² | Prodáno | |||
| BD1_Byt22 | 3+KK | 80,2 m² | L 4 m² | 3,9 m² | Prodáno |
3. nadzemní podlaží
| Byt číslo 23 | |
|---|---|
| Prodáno | |
| Byt číslo 24 | |
|---|---|
| Prodáno | |
| Byt číslo 25 | |
|---|---|
| Prodáno | |
| Byt číslo 26 | |
|---|---|
| Prodáno | |
| Byt číslo 27 | |
|---|---|
| Prodáno | |
| Byt číslo 28 | |
|---|---|
| Prodáno | |
| Byt číslo 29 | |
|---|---|
| Prodáno | |
| Byt číslo 30 | |
|---|---|
| Prodáno | |
| Byt číslo 31 | |
|---|---|
| Prodáno | |
| Byt číslo 32 | |
|---|---|
| Prodáno | |
| Byt číslo 33 | |
|---|---|
| Prodáno | |
| Byt číslo 34 | |
|---|---|
| Prodáno | |
| Číslo | Typ | Podlahová plocha | Balkón / Lodžie / Terasa | Sklep | Cena bytu s DPH | Cena garážového stání s DPH | Stav | PDF ke stažení |
|---|---|---|---|---|---|---|---|---|
| BD1_Byt23 | 3+KK | 83,8 m² | L 4 m² | 4,5 m² | Prodáno | |||
| BD1_Byt24 | 2+KK | 67,9 m² | L 5,5 m² | 2,4 m² | Prodáno | |||
| BD1_Byt25 | 2+KK | 47,1 m² | L 4,7 + 5,1 m² | 2,4 m² | Prodáno | |||
| BD1_Byt26 | 1+KK | 30,6 m² | 2,4 m² | Prodáno | ||||
| BD1_Byt27 | 2+KK | 47,1 m² | L 4,7 + 3,4 m² | 2,4 m² | Prodáno | |||
| BD1_Byt28 | 1+KK | 30,6 m² | 2,4 m² | Prodáno | ||||
| BD1_Byt29 | 2+KK | 58,1 m² | L 3,4 m² | 2,4 m² | Prodáno | |||
| BD1_Byt30 | 3+KK | 76,7 m² | L 3,4 m² | 4,5 m² | Prodáno | |||
| BD1_Byt31 | 3+KK | 80,2 m² | L 4 m² | 2,0 m² | Prodáno | |||
| BD1_Byt32 | 2+KK | 64,3 m² | L 7,5 m² | 2,0 m² | Prodáno | |||
| BD1_Byt33 | 2+KK | 64,3 m² | L 7,5 m² | 2,0 m² | Prodáno | |||
| BD1_Byt34 | 3+KK | 80,2 m² | L 4 m² | 3,9 m² | Prodáno |
4. nadzemní podlaží
| Byt číslo 35 | |
|---|---|
| Prodáno | |
| Byt číslo 36 | |
|---|---|
| Prodáno | |
| Byt číslo 37 | |
|---|---|
| Prodáno | |
| Byt číslo 38 | |
|---|---|
| Prodáno | |
| Byt číslo 39 | |
|---|---|
| Prodáno | |
| Byt číslo 40 | |
|---|---|
| Prodáno | |
| Byt číslo 41 | |
|---|---|
| Prodáno | |
| Byt číslo 42 | |
|---|---|
| Prodáno | |
| Byt číslo 43 | |
|---|---|
| Prodáno | |
| Byt číslo 44 | |
|---|---|
| Prodáno | |
| Číslo | Typ | Podlahová plocha | Balkón / Lodžie / Terasa | Sklep | Cena bytu s DPH | Cena garážového stání s DPH | Stav | PDF ke stažení |
|---|---|---|---|---|---|---|---|---|
| BD1_Byt35 | 2+KK | 61,0 m² | T 27 m² | 4,5 m² | Prodáno | |||
| BD1_Byt36 | 2+KK | 56,5 m² | T 13,9 m² | 3,7 m² | Prodáno | |||
| BD1_Byt37 | 3+KK | 74,5 m² | T 8,3 m² | 3,7 m² | Prodáno | |||
| BD1_Byt38 | 3+KK | 79,0 m² | T 10,4 m² | 3,7 m² | Prodáno | |||
| BD1_Byt39 | 2+KK | 53,4 m² | T 7,3 m² | 3,7 m² | Prodáno | |||
| BD1_Byt40 | 2+KK | 67,4 m² | T 6,9 m² | 4,5 m² | Prodáno | |||
| BD1_Byt41 | 3+KK | 81,4 m² | L 5,6 m² | 2,0 m² | Prodáno | |||
| BD1_Byt42 | 2+KK | 64,3 m² | T 6,2 m² | 2,0 m² | Prodáno | |||
| BD1_Byt43 | 1+KK | 33,8 m² | T 7,7 m² | 2,0 m² | Prodáno | |||
| BD1_Byt44 | 3+KK | 82,7 m² | T 25,9 m² | 3,9 m² | Prodáno |